
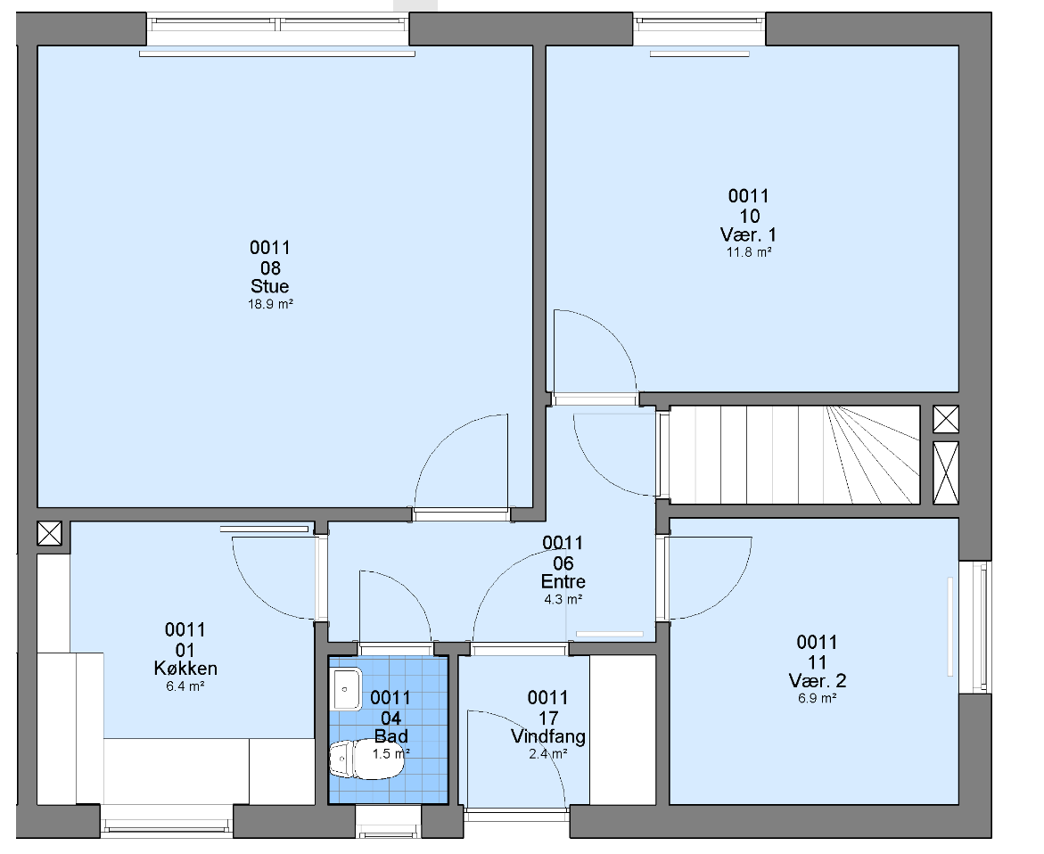
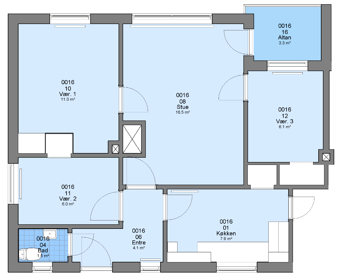
Der er flere forskellige typer af lejligheder. Nederst på siden har vi udvalgt nogle eksempler. Alle plantegninger og priser er vejledende.
Følgende faciliteter er
tilknyttet ejendommen:
Komfur
Bruser
Kælderrum
Opvarmning: Fjernvarme
Husdyr tilladt (1 kat eller hund)


