
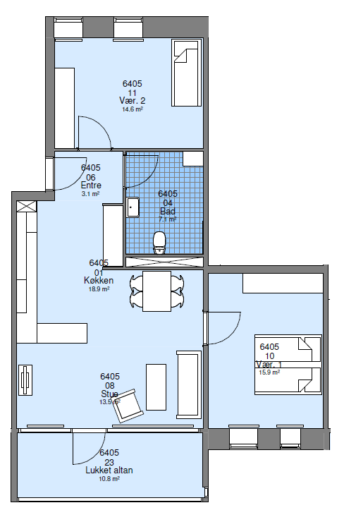
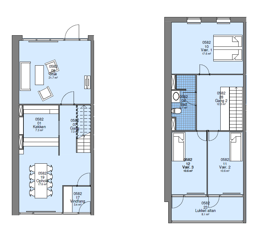
Der er flere forskellige typer af lejligheder. Nederst på siden har vi udvalgt nogle eksempler. Alle plantegninger og priser er vejledende.
Følgende faciliteter er
tilknyttet ejendommen:
Altan
Have til stuelejligheder
Køleskab
Komfur
Kælderrum
Vaskeri
Fælleslokaler
Opvarmning: Fjernvarme
Cykelrum
Antenne
2 hunde eller 2 katte er tilladt, se ordensreglement
Legeplads










