
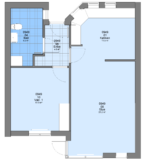
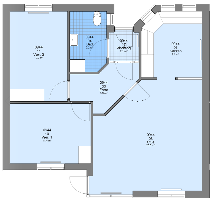
Der er 3 typer af lejligheder i afdelingen. Priser og plantegninger er vejledende.
Følgende faciliteter er
tilknyttet ejendommen:
Have til alle lejligheder
Have til stuelejligheder
Køleskab
Fryser
Komfur
Emhætte
Bruser
Skur
Opvarmning: Fælles oliefyr
Husdyr tilladt
P-plads


